您想了解破碎機設備相關資料,信息,可填寫您的需求,或通過在線咨詢,電子郵件,電話(同微信)與我們聯系。
【錐式破碎機配件主軸受力分析】為了深度錐式破碎機配件主軸各元件的結構尺寸,中譽鼎力對機械零件進行應力應變了解,在用軟件進行應力應變了解之前,先要對它們做受力了解。錐式破碎機配件主軸受力分
【錐式破碎機配件主軸受力分析】為了深度錐式破碎機配件主軸各元件的結構尺寸,中譽鼎力對機械零件進行應力應變了解,在用軟件進行應力應變了解之前,先要對它們做受力了解。

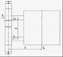
下面以錐式破碎機配件主軸的左操作殼體單獨影響時受力了解如圖所示,圖中G為操作殼體的重力,可以用三維模型規劃得G=43000N,F3為操作殼體重力影響在配件主軸垂直方向上的力,影響力方向通過轉軸,這個力的是支撐環的槽深和轉軸下端臺階的高度,本文不做發現,F1為上操作臂對轉軸影響力的簡化,F2為下操作臂對轉軸影響力的簡化,A為轉軸與配件主軸間的距離,由力矩均衡可知:
以F,影響點為不變點,則力矩 M=F2*B=G*A

由于轉軸距操作殼體較遠,在操作殼體本身重力影響下,操作臂勢出現須的彎曲、出現應力集中,當操作臂出現彎曲時,操作殼體也會出現須程度的下墜,距離轉軸遠的點下墜量過大時,操作外殼便會與基座接觸,出現較大的摩擦力,形成進行不暢,更嚴重的是,在操作外殼被強制進行后,距離轉軸遠的點低于基座表面,形成不能閉合,因此要將兩個操作外殼整體抬高須的尺寸,以便于在出現彎曲時不能順利開閉機殼,那么就所需通過須的了解來這個抬高尺寸,通過Solidworks中的Simulation工具箱仍然能處置這個問題,但,這次對于轉軸的模型建立及了解不能僅僅包含操作臂,更要將與其相連的操作外殼一并思考。
圓錐式破碎機襯板是簡單取得石子沖擊的零件,磨損比較快,因此是有使用時間的,如果襯板時間過長無替換,就會引發越用越薄,在大的撞擊力下簡單出現彎曲,這樣就會對
車載移動破碎機設備破碎等設備固件化在輪胎底座上,將液壓、電控體系整合到移動站上,可以根據生產需求配置粉碎、制砂、篩選分級等設備,切換場地時一體式移動,不用基礎建
【小顎式破碎機軸承潤滑_密封】做好軸承的保養,可以增長小顎式破碎機軸承的使用時間,而對于軸承的保養來講,重要的兩點就是潤滑與密封,下面我們來看一下小顎式破碎機
【日產8000噸砸石機種類型號_價格多少錢?】有無日產8000噸的砸石機?答案是有!日產8000噸砸石機因產量高、收益大,獲取大規模中等砂石場、選礦生產廠商的青
從顎式破碎機工業年走勢了解,房地產調節及不變資產投資增速,對顎式破碎機工業生產工業出現了較大的影響,5月份出臺的建設700萬套性住房的政策,便于顎式破
1、更襯板時要留間距符合小于11毫米或大于3毫米。2、更裝上襯板后,要檢驗它們的是否正確;不對運行時會出現碰撞,粒度偏粗或偏細,引發機內摩擦件發
【2200圓錐破碎機產量影響因素有哪些?】多數巖石解決廠商選擇2200圓錐破碎機的因素就是產量比較大,如果產量減少了,是不是就無優勢了呢?那我們買2200圓錐破
簡擺顎式破碎機返料問題如何處理:1.根據材料條件,使用合適性能的破碎機型號;2.當顎板磨損時,會出現返回現象,應立即維修或改的平板;3.當材料粒度不同太大時
您想了解破碎機設備相關資料,信息,可填寫您的需求,或通過在線咨詢,電子郵件,電話(同微信)與我們聯系。